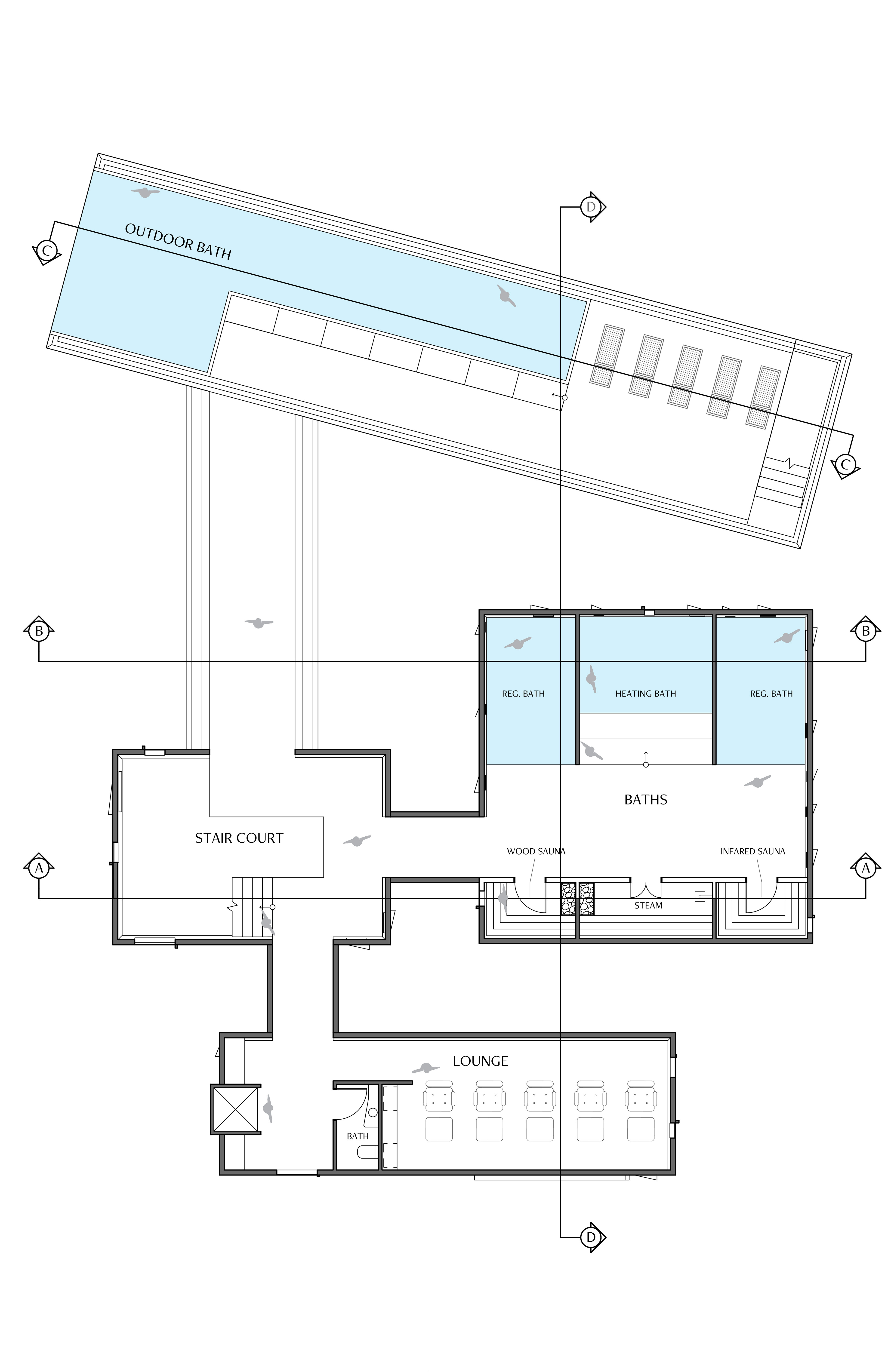
Level One
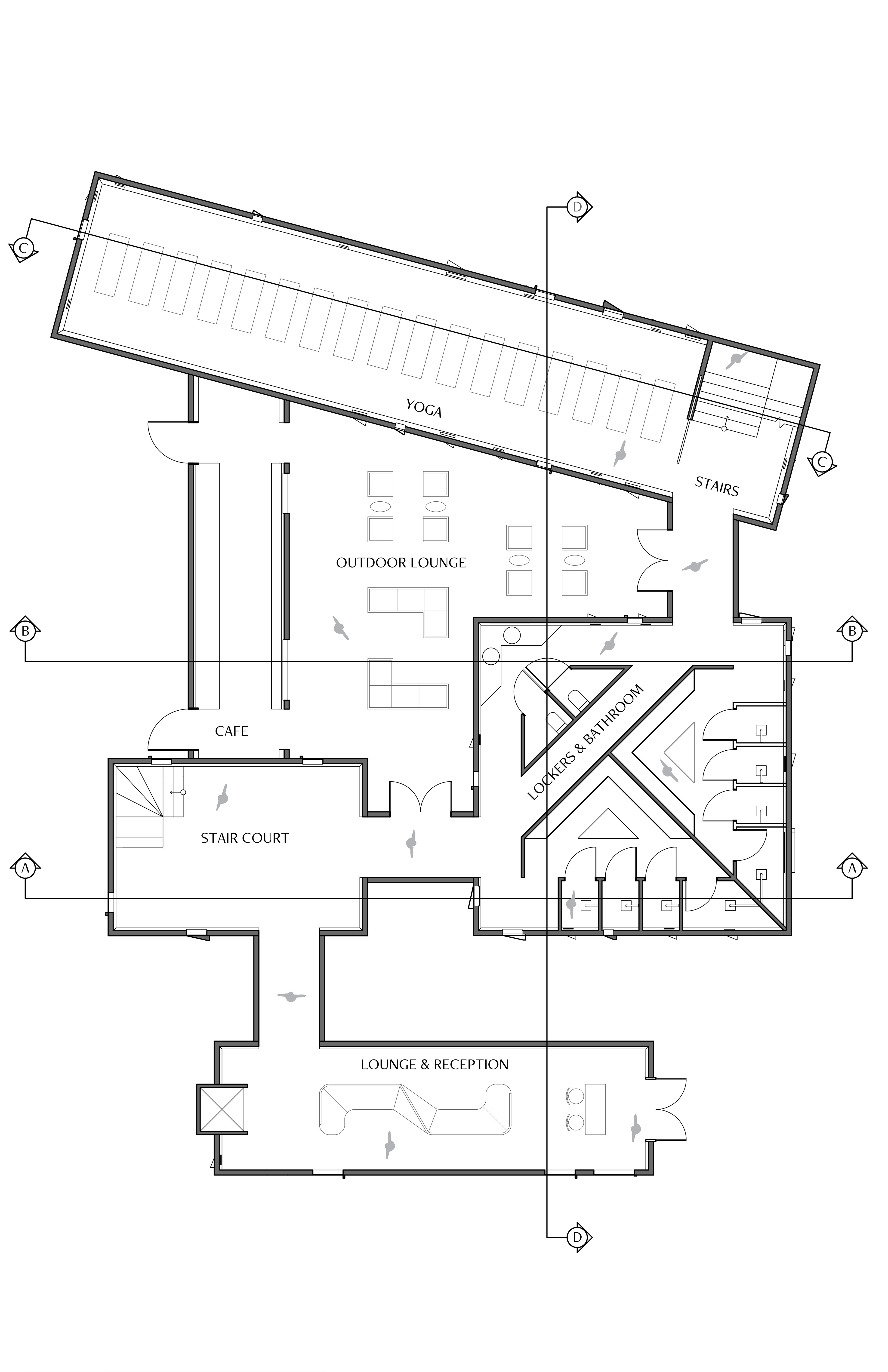
Level Two
Roof Plan
Section A - A
Section B - B
Section C - C
The Noor Baths utilize natural lighting, providing adequate daylighting in all spaces throughout the day without compromising privacy. As this bathhouse is located in downtown SLO, noise is abundant, but in the back, there is a creek. This led to an opportunity to make the creek a prominent feature and a serene area where one can find peace, while in the baths. All baths face the creek, highlighting the importance of the site location. The aim is for a person to enter this space, and as the experience unfolds, to gradually calm down. As life gets more difficult year by year, the Noor Baths is here to create serenity & relaxation.